Contatta l'agenzia

CASA E RETE S.A.S
VIA DANTE 23
PALERMO
TEL. 091 205407
VAI AL SITO DELL’AGENZIA »

NOME  
COGNOME  
 EMAIL  
TELEFONO
NOTE
Inserisci il codice:

  Accetto la normativa sulla privacy

x

Villa a Partanna - Contrada Feudo

Informazioni generali

Codice immobile: 033105

Prezzo: 115.000 €

Zona: Partanna

Stato immobile: libero

Categoria immobile: media

Mq: 140

Vani: 5

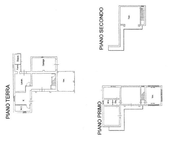
Piano: T

Classe Energetica: classe g - 52,4230 kwh/m2(annuo)

Descrizione

 La villa è immersa in uno splendido giardino di 6000 mq circa caratterizzato da una ricca vegetazione mediterranea con alberi di arancia, mandarino e ulivo, ubicata nel territorio del comune di Partanna in provincia di Trapani, adiacente allo svincolo autostradale di Santa Ninfa dove è possibile raggiungere in breve tempo le zone marine più conosciute quali Castellamare del Golfo, Selinunte, Mazara del Vallo, Marsala e Trapani, inoltre  gode di un suggestivo panorama dove poter rilassarsi e trascorrere dei momenti piacevoli a contatto con la natura.
La proprietà si suddivide su due livelli  ed è  composta al piano terra da un porticato un garage una stanza con un forno una cucina abitabile un soggiorno ed un bagno, al primo piano abbiamo la zona notte con 3 camere da letto una terrazza panoramica ed un balcone che gira attorno le camere.
Tutti gli ambienti hanno accesso diretto dall’esterno. La zona barbecue è costituita da un braciere a legna ed un forno pizza.

L’immobile necessita di alcuni interventi di ristrutturazione.
E' possibile visionarlo previo appuntamento telefonico presso la nostra agenzia.

Mappa

Contrada Feudo - Partanna